Bilocale in vendita

Nocera Terinese, Via M. de Luca - Nocera Scalo
€ 50.000
2 locali 2 locali
41 Mq 41 Mq
1 bagno 1 bagno

Bilocale in vendita

Nocera Terinese, Via M. de Luca - Nocera Scalo

Descrizione annuncio

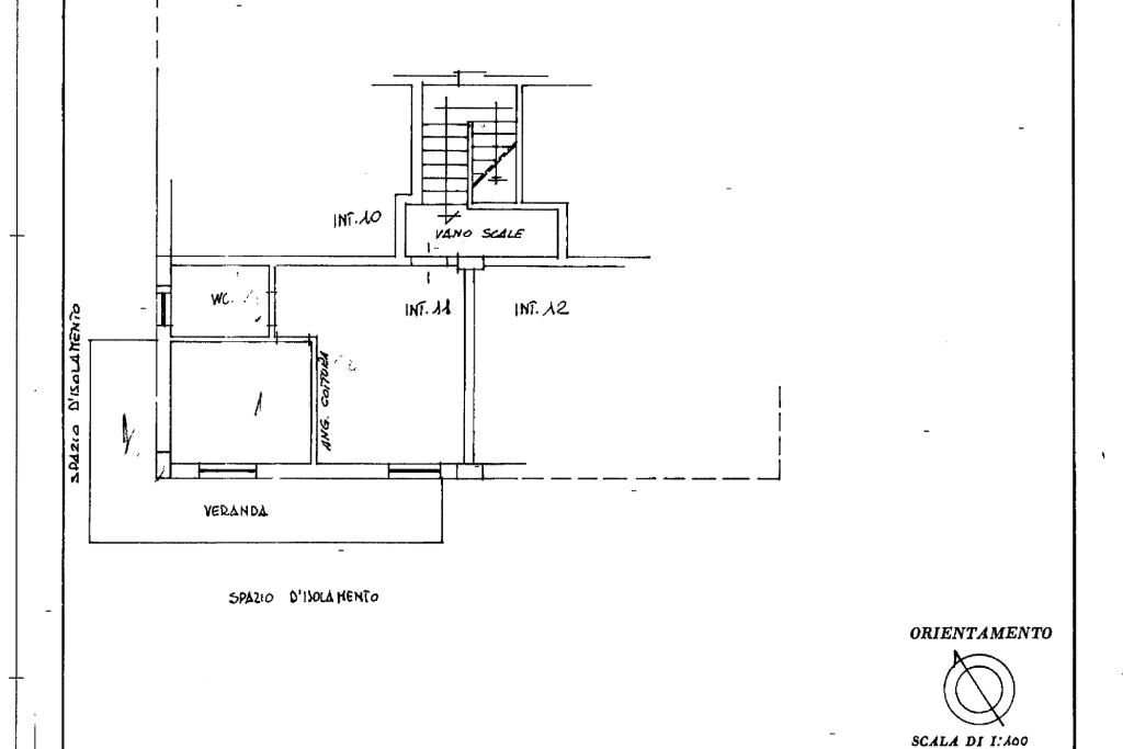
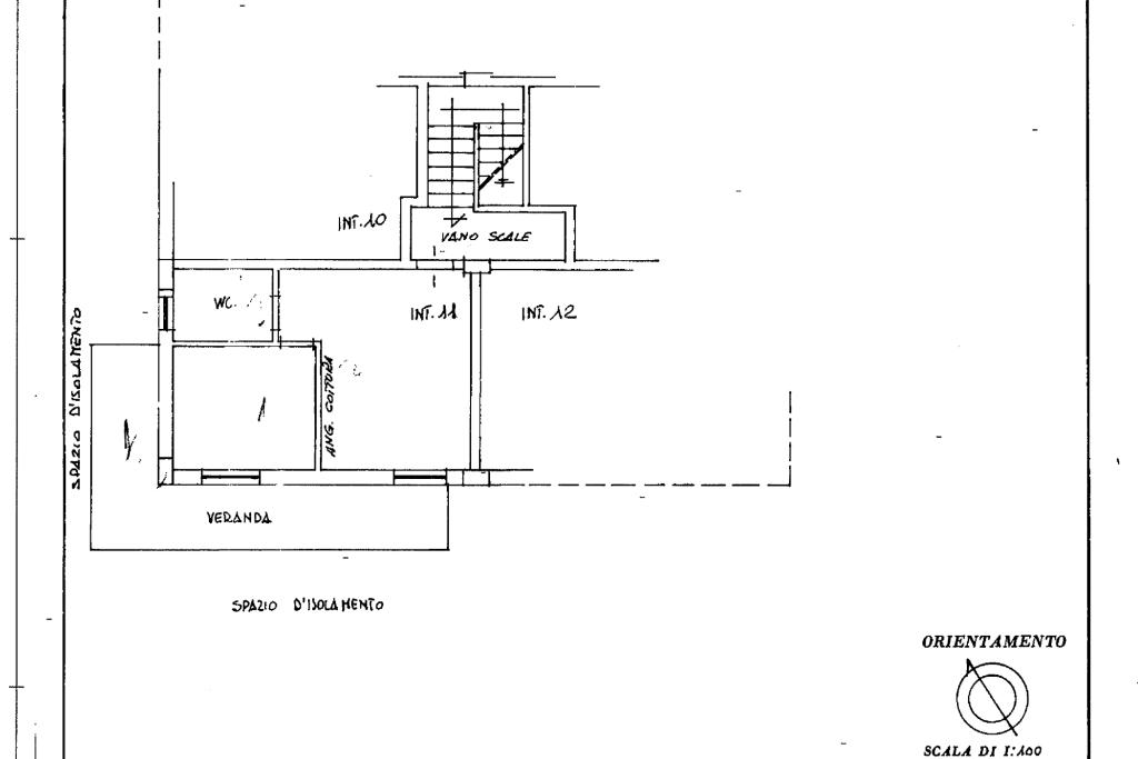
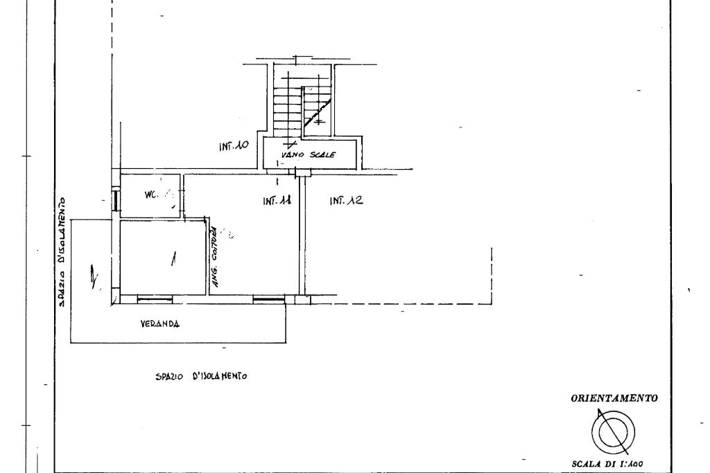
A Nocera Scalo, precisamente nel Villaggio Nuova Temesa, è disponibile un accogliente appartamento di 41 mq, situato al secondo piano di un edificio civile costruito nel 1980.

L'immobile, recentemente ristrutturato, offre spazi ben distribuiti e funzionali. Entrando, si viene accolti da un luminoso soggiorno con cucina open space che si apre su un balcone, ideale per momenti di relax all'aperto.


La zona notte comprende una camera da letto confortevole, mentre il bagno, anch'esso ristrutturato, è dotato di tutti i comfort necessari.

Questa soluzione abitativa rappresenta un'opportunità interessante per chi cerca un'abitazione pronta da vivere, in una zona tranquilla ma ben collegata.

Visionabile tutti i giorni previo avviso telefonico al 0982721020, anche whatsapp.

Mostra tutto

Nelle vicinanze

Trasporto pubblico Trasporto pubblico
Nocera Terinese
Nocera Terinese
410 m
Farmacia Farmacia
Farmacia Mancini
440 m
Supermercati Supermercati
Conad
490 m
Supermercato Fiorelli
1,6 Km
Bar Bar
Lido Ligea
500 m
Bar
610 m
Ristoranti Ristoranti
Ristorante Maris
430 m
Ristorante "Le arcate"
1,6 Km
Pizzeria del golfo
1,8 Km
Ristorante L'aragosta
1,8 Km
Mostra tutto

Caratteristiche

Rif.:
61105535
Piano:
2 di 3 (Piano medio)
Balconi:
1
Camere da letto:
1
Arredamento:
Parziale
Condizionamento:
Autonomo
Mostra tutto
Prezzo Prezzo
€ 50.000
Rata mutuo Rata mutuo
€ 233 / mese
Spese annue Spese annue
€ 250
Proponi il tuo prezzoProponi il tuo prezzo

Classe Energetica

C
C
C
C
C
C
C
C
C
EP globale non rinnovabile:
120.47 kW h/m² anno
EP globale rinnovabile:
18.96 kW h/m² anno
EP invernale del fabbricato:
EP estiva del fabbricato:
Anno di costruzione:
1980
Riscaldamento:
Assente

Ti interessa visionare l'immobile?

Fissa un appuntamento  Fissa un appuntamento

Richiedi informazioni

* Questi campi sono obbligatori

Calcola il tuo mutuo

Semplice e senza impegno
Anticipo

( % )
Mutuo

( % )

pochi semplici passi

inserisci i tuoi dati
Questionario completato
Grazie per aver richiesto un appuntamento senza impegno con un nostro Consulente del Credito e Assicurativo.

Hai inserito correttamente tutti i dati necessari e a breve riceverai una e-mail con un link da convalidare per inviare i tuoi dati.
Affiliato
Studio Amantea Srl
P.zza Commercio, 87032 Amantea (CS)

Il nostro staff


  • Sabrina Fayouka
    Collaboratrice

  • Carolina Gentile
    Coordinatrice

  • Giuseppe Manfredi
    Affiliato

  • Riccardo Antonio Russo
    Responsabile
P.zza Commercio, 87032 Amantea (CS)
Zona: Amantea
Mostra su mappa
Orari: 09:00/13:00 - 15:30/19:30
Affiliato
Studio Amantea Srl
P.zza Commercio, 87032 Amantea (CS)

2025 Tecnocasa Franchising S.p.A. - P. IVA 08365160152 - Via Monte Bianco 60/A 20089 Rozzano (MI). Ogni agenzia ha un proprio titolare ed è autonoma. Privacy policy | Policy utilizzo | Cookie policy