Bilocale in vendita

Nocera Terinese, Villaggio Nuova Temesa - Nocera Scalo
€ 50.000
2 locali 2 locali
45 Mq 45 Mq
1 bagno 1 bagno

Bilocale in vendita

Nocera Terinese, Villaggio Nuova Temesa - Nocera Scalo

Descrizione annuncio

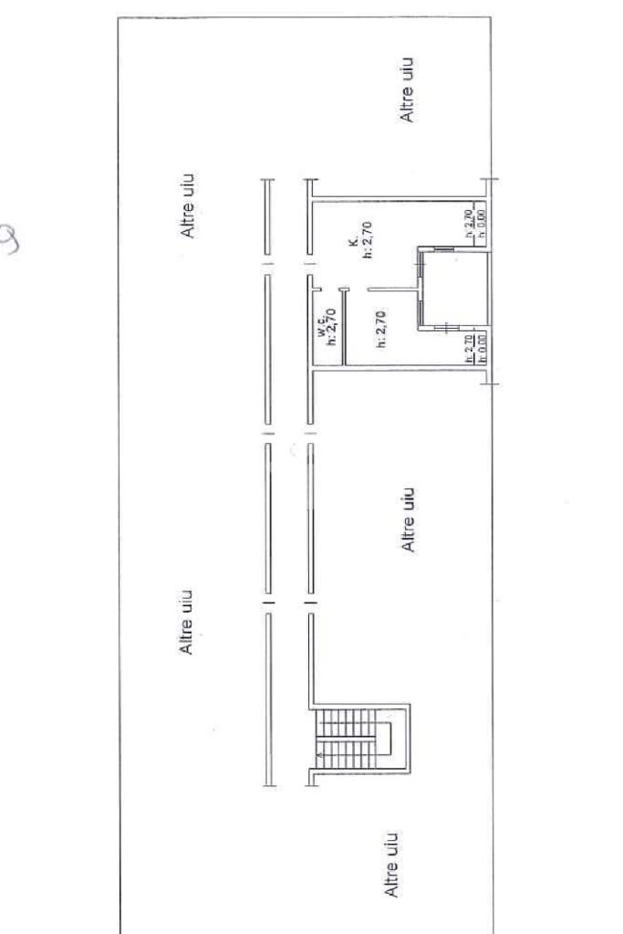
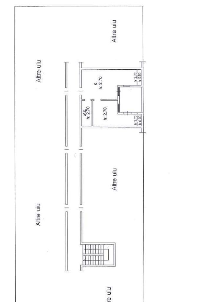
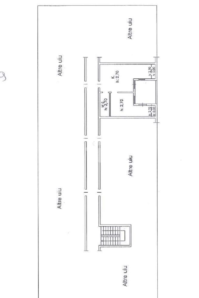
A Nocera Scalo, precisamente nel Villaggio Nuova Temesa, è disponibile un'accogliente mansarda.

L'immobile, di 45 mq, è stato completamente ristrutturato, offrendo un ambiente moderno e funzionale.

La mansarda si compone di due locali ben distribuiti: un luminoso soggiorno che si apre su un balcone, ideale per momenti di relax all'aperto, e una cucina pratica e ben organizzata.

La zona notte include una camera da letto confortevole, mentre il bagno, anch'esso ristrutturato, completa la proprietà con stile e funzionalità.

Costruito nel 1980, l'appartamento si trova in una posizione strategica, perfetta per chi cerca tranquillità senza rinunciare alla comodità dei servizi vicini.

Questa soluzione abitativa rappresenta un'opportunità interessante per chi desidera un'abitazione pronta da vivere, in un contesto sereno e ben collegato.

Visionabile tutti i giorni previo avviso telefonico al 0982721020, anche whatsapp.

Garanzia di assistenza nella fase di acquisto, post vendita e nelle pratiche di ottenimento del mutuo tramite la rete di mediazione creditizia Kiron.

Mostra tutto

Nelle vicinanze

Trasporto pubblico Trasporto pubblico
Nocera Terinese
Nocera Terinese
430 m
Farmacia Farmacia
Farmacia Mancini
460 m
Supermercati Supermercati
Conad
490 m
Supermercato Fiorelli
1,6 Km
Bar Bar
Lido Ligea
470 m
Bar
590 m
Ristoranti Ristoranti
Ristorante Maris
420 m
Ristorante "Le arcate"
1,6 Km
Pizzeria del golfo
1,8 Km
Ristorante L'aragosta
1,8 Km
Mostra tutto

Caratteristiche

Rif.:
61105530
Piano:
3 di 3 (Piano mansarda)
Balconi:
1
Camere da letto:
1
Arredamento:
Parziale
Condizionamento:
Autonomo
Mostra tutto
Prezzo Prezzo
€ 50.000
Rata mutuo Rata mutuo
€ 236 / mese
Spese annue Spese annue
€ 250
Proponi il tuo prezzoProponi il tuo prezzo

Classe Energetica

G
G
G
G
G
G
G
G
G
EP globale non rinnovabile:
99.44 kW h/m² anno
EP globale rinnovabile:
10.08 kW h/m² anno
EP invernale del fabbricato:
EP estiva del fabbricato:
Anno di costruzione:
1980
Riscaldamento:
Assente

Ti interessa visionare l'immobile?

Fissa un appuntamento  Fissa un appuntamento

Richiedi informazioni

Clicca su Leggi per aprire l'informativa
* Questi campi sono obbligatori

Calcola il tuo mutuo

Semplice e senza impegno
Anticipo

( % )
Mutuo

( % )

pochi semplici passi

inserisci i tuoi dati
Questionario completato
Grazie per aver richiesto un appuntamento senza impegno con un nostro Consulente del Credito e Assicurativo.

Hai inserito correttamente tutti i dati necessari e a breve riceverai una e-mail con un link da convalidare per inviare i tuoi dati.
Affiliato
Studio Amantea Srl
P.zza Commercio, 87032 Amantea (CS)

Il nostro staff


  • Sabrina Fayouka
    Collaboratrice

  • Carolina Gentile
    Coordinatrice

  • Giuseppe Manfredi
    Affiliato

  • Riccardo Antonio Russo
    Responsabile
P.zza Commercio, 87032 Amantea (CS)
Zona: Amantea
Mostra su mappa
Orari: 09:00/13:00 - 15:30/19:30
Affiliato
Studio Amantea Srl
P.zza Commercio, 87032 Amantea (CS)

2026 Tecnocasa Franchising S.p.A. - P. IVA 08365160152 - Via Monte Bianco 60/A 20089 Rozzano (MI). Ogni agenzia ha un proprio titolare ed è autonoma. Privacy policy | Policy utilizzo | Cookie policy